標準網球場尺寸圖-網球場CAD圖下載-塑膠網球場標準面積
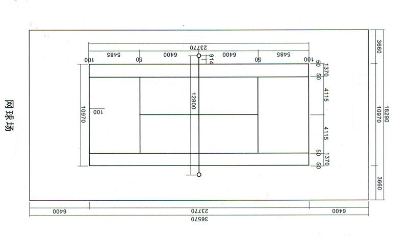
一、標準網球場的尺寸,總占地面積是36.6*18.3米,其中綠色有效雙打面積
雙打場為23.77*10.97米
單打場為23.77*8.23米
國際網聯和國家體委頒布的《網球競賽規則》中規定,一片標準網球場地的占地面積不小于36.60米(長)×18.30米(寬),這個尺寸也是一片標準網球場地四周圍擋網或室內建筑內墻地面的凈尺寸。在這個面積內,有效雙打場地的標準尺寸是:23.77米(長)×10.97米(寬),在每條端線后應留有空余地不小于6.40米,在每條邊線外應留有空余地不小于3.66米。在球場安裝網柱,兩柱中心測量,柱間距是12.80米,網柱頂端距地平面是1.07米,球網中心上沿距地平面是0.914米。
如果是兩片或兩片以上相鄰而建的并行網球場地,相鄰場地的邊線之間距離不小于4米。如果是室內網球場,端線6.40米以外上空凈高不小于6.40米。室內屋頂在網球上空的凈高不小于11.50米。
室外網球場地的四周圍擋網高度一般在4-6米之間,視球場周圍環境與建筑物高度,也可適量增減。
需要安裝照明燈光的網球場,除室內屋頂燈具分布外,室外球場上空和端線兩側不應設置燈具。室外球場燈具應設置在兩側圍擋網距地面高7.60米以上,燈光從球場兩側朝場面均勻照射。燈光照度應當根據球場使用的不同用途,請電光源技術人員專門設計,經驗告訴我們,每片網球場燈光的平均照度,應當在340個勒克斯以上。
地面
比賽場地一般采用術質地板或塑料膠地面,這樣的場地應具有一定的彈性,滑澀程度適中。
燈光
比賽應在場地四周比較暗的環境中進行,因此,賽場上空的燈光至關重要。一般燈光的設計和布局有兩種方法:一種是自熾燈泡,安裝在每一球場的兩側網柱的上空;另一種是熒光燈,掛在與球場邊線平行并且長度一樣的地方。為避免自然光線的干擾,場館內應掛上窗簾,場地上的照度要求達到500~750勒克斯。

標準網球場尺寸圖
2015最新標準網球場尺寸CAD圖下載:標準網球場尺寸CAD圖
二、地面的畫法
(一)中線
畫中線,并取中心點,這條13·40米線應把長方形場地寬平分成兩半,它的1/2處便是中心點0。從O點向縱軸線的兩個方向各量6.7米,即為場地的中線,A、B在中線的端點。
(二)端線
過A和B各作一條垂直中線的直線,從A和B各向直線兩端量出3.05米的距離,分別得出C、D和E、F四點。使CD和EF這兩條線的外緣分別通過A和B,CD和EF即是球場的端線,也是單打場地的后發球線。連接CE和DF,并使其外緣通過C、E、D、F,CE和DF即為雙打場地的兩條邊線。
(三)單打場地的兩條邊線
從雙打場地的四個頂點C、D、E、F分別向端線內量0.46米,找出G、H、I、J四點,這就是單打場地的四個頂點。連接G、J和H、I即為單打比賽的兩條邊線。同樣,這兩條線的外緣分別通過G、J和H、I。
(四)雙打比賽的后發球線
從雙打場地的四個頂點C、D、E、F分別向邊線內量0.76米,找出K、L、M、N四點,用直線連接K、L、連接N、M,這兩條線即為雙打比賽的后發球線。
(五)前發球線
從雙打場地的四個頂點C、D、E、F分別向邊線內量出4.68米,找出P、Q、R、S四點,連接P、Q并使直線外緣通過P、Q,連接R、S并使直線外緣通過R、s,就畫出PQ和RS兩條前發球線。
(六)檢驗標準
一塊羽毛球比賽場地能否畫得標準,關鍵是要找準場地四個頂點C、D、E、F的位置。檢驗的方法,是用鋼尺測量場地兩條對角線CF和DE的長度。標準場地CF和DE的長度均為14.723米。
網球:
國際網聯和國家體委頒布的《網球競賽規則》中規定,一片標準網球場地的占地面積不小于36.6米(南北長)×18.3(東西寬)米,這一尺寸也是一片標準網球場地四周圍擋網或室內建筑內墻面的凈尺寸。在這個面積內,有效雙打場地的標準尺寸是:23.77米(長)×10.98米(寬),在每條端線后應留有余地不小于6.40米,在每條邊線外應流有余地不小于3.66米。在球場安裝網柱,兩柱中心測量,柱間距是12.80米,網柱頂端距地面是0.914米。
如果是兩片或兩片以上相連而建的并行網球場地。相鄰場地邊線之間的距離不小于4.0米。如果是室內網球場,端線6.40米以外的上空凈高不小于6.40米,室內屋頂在球網上空的凈高不低于11.50米。
網球場地規格
----國際網聯和國家體委頒布的《網球競賽規則》中規定,一片標準網球場地的占地面積不小于36.58m′18.29m。這一尺寸也是一片標準網球場地四周擋網或室內建筑內墻面的凈尺寸。在這個面積內,有效雙打場地的標準尺寸是:23.77m(長)′10.97m(寬),每條端線后應留有不小于6.40m的余地,在每條邊線外應留有余地不小于3.66m。在球場安裝網柱,兩柱中心測量,柱間距是12.80m,網柱頂端距地面是1.07m,球網中心上沿距地面是0.914m。
- 上一篇:株洲多所學校正籌建體育館 考慮對外開放 2015/6/23
- 下一篇:PVC塑膠球場地板日常維護保養手冊 2015/6/22


